Vue exceptionnelle, maison traditionnelle

144 m² 297 m²
229 000 €

Réf : 600/414

DERNIER LOT: superbe maison neuve, très basse énergie, dans un quartier calme avec vue dégagée sur les campagnes. Construction traditionnelle de qualité sur un terrain de 2 ares 97 ca, comportant 4 vraies chambres + grenier aménageable, séjour, 1 salle de douches et 1 salle de bains, garage avec porte auto. panneaux photovoltaïques, citerne à eau avec groupe hydr., ventilation mécanique simple flux, parking, ... Consommation énergétique estimée à 30€/mois. Vente sous le régime de la TVA (pas de droits d'enregistrement). Possibilité de parachèvements: MAIN D'OEUVRE OFFERTE SUR POSE REVETEMENTS DE SOL ET PORTES. Renseignements complémentaires au 081/23.03.43

Rez-de-chaussée:

  • Garage: (3.26x5.93) 19.32m² + 1.13m² = 20.45m², carrelage, porte sectionnelle automatisée
  • Buanderie: (2.12x3.26) 6.89m², carrelage, accès sur l'extérieur
  • Vides ventilés sur le reste de la construction

Entre-sol 1: 

  • Hall d'entrée: (0.26x2.45) + (1.27x1.75) 4.55m², chape
  • WC séparé: (1.36x0.88) 1.19m², chape, wc suspendu Geberit
  • Living: (3.94x8.27) 32.63m², chape, accès sur la terrasse et le jardin
  • Cuisine: (4.00x2.70) 10.80m², chape

Entre-sol 2: 

  • Hall de nuit: (0.88x2.45) 2.15m², chape
  • WC séparé: (1.36x0.89) 1.22m², chape, wc suspendu Geberit
  • Chambre 1: (3.25x4.02) 13.06m² + 2.19m² = 15.25m², chape
  • Salle de douches: (2.25x3.18) 7.15m², chape, douche et emplacement pour un meuble lavabo 

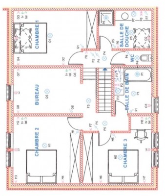
Etage 1:

  • Hall de nuit: (2.19x1.72) 3.78m², chape
  • Chambre 2 ou bureau: (4.02x2.69) 10.82m², chape, accès vers le grenier
  • Chambre 3: (4.00x4.00) 16.00m², chape
  • Chambre 4: (3.00x4.13) 12.40m² + 1.25m² = 13.65m², chape
  • Salle de bains: (2.68x2.24) 6.03m², chape, baignoire et emplacement pour un meuble lavabo

Combles: 

  • Pièce de 32.41m², OSB au sol

Extérieur:

  • Parking avant 1 voiture en pavés auto bloquants
  • Terrasse arrière de 27m², béton au sol, prise extérieure erméthique et arrivée électrique pour l'éclairage
  • Orientation arrière: Nord-Est
  • Passage latéral
  • Jardin avec pelouse semée
  • Vue dégagée à l'avant et à l'arrière

Caractéristiques:

  • Maison très basse énergie, consommation estimée à ± 30€/mois pour le chauffage, l'électricité et l'eau sanitaires
  • Isolation poussée
  • Chauffage par le sol avec pompe à chaleur Air - Eau et ventilo convecteur raccordé sur la pompe à chaleur aux étages
  • Châssis double vitrage PVC
  • Ventilation mécanique simple flux Renson
  • Panneaux photovoltaïques, primes de ± 500€ par/an + consommation gratuite
  • Citerne à eau depluie raccordée à un groupe hydrophore
  • Parachèvements possibles

Date de disponibilité : 11 janvier 2019

Informations financières :

Prix
229 000 €

Détails :

État du bien
Neuf
Surface habitable
144 m²
Surface terrain
297 m²
Exposition
Nord-est
Nb de wc
2

Certificat énergétique :

Classe énergétique
20180925501990
E SPECIFIQUE
28 kWh/m².an
E TOTALE
5077 kWh/an
CO

Documents :

Présentation vidéo :

Demande d'infos :

Retour à la liste