Permis octroyé

250 m²
Vaste surface de bureau avec permis octroyé pour sa transformation en 2 appartements. Ce bien développe une superficie de ± 250m², il se trouve à proximité des axes autoroutiers et à 2 minutes du centre de Dinant. Il dispose de nombreux emplacements de parking communs, 2 emplacements privatifs, 26 panneaux photovoltaïques assurant une production d'environ 11.000 kwh. Libre à l'acte, renseignements complémentaires au 081/23.03.43.
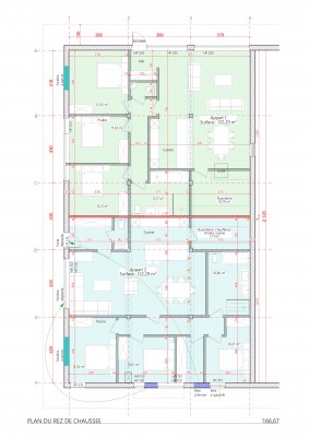
Permis octroyé:
Appartement 1: ± 122,29m2
- Halle d'entrée
- Wc séparé
- Cuisine
- Séjour
- Hall de nuit
- Chambre 1
- Chambre 2
- Chambre 3
- Salle de bains
- Buanderie
Appartement 2: ± 122,29m2
- hall d'entrée
- Wc séparé
- Cuisine
- Séjour
- Hall de nuit
- Chambre 1
- Chambre 2
- Chambre 3
- Salle de bains
- Buanderie
Informations financières :
Détails :
Documents :
Demande d'infos :
Retour à la liste