Appartement neuf

77 m²
S-IMMO vous propose un appartement neuf, au rez-de-chaussée, dans une superbe résidence avec ascenseur. Il se compose d'un lumineux séjour, d'une cuisine entièrement équipée, de 2 chambres, d'une salle de bains, une terrasse ainsi qu'une cave. Il est situé à Lustin, dans une des plus belles vallées de Namur. Les finitions sont de qualités et la copropriété est à taille humaine. Faire offre à partir de 237.000€, sous réserve de l'acceptation des propriétaires. Vente sous régime de la TVA. A visiter rapidement. Disponible à l'acte. Renseignements complémentaires au 081/23.03.43.
Sous-sol:
Rez-de-chaussée:
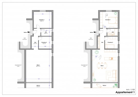
- Hall d'entrée: (1.52x1.61) 2.45m², carrelage
- Hall vestiaire: (1.42x3.05) 4.33m², placards sur mesure
- Séjour avec cuisine américaine hyper équipée: (6.87x5.53) 37.99m², carrelage, accès à la terrasse, ilôt central, frigo, congélateur 3 bacs, four électrique, taque vitrocéramique 4 points, hotte, lave-vaisselle, évier simple bac + égouttoir, électros de marque SMEG
- Chambre 1: (2.87x2.73) 7.84m², carrelage
- Chambre 2: (3.57x3.83) 13.67m², carrelage
- Salle de bains: (2.27x1.57) 3.56m², carrelage, meuble lavabo, baignoire, wc suspendu geberit,
- Terrasse: (1.03x5.68) 5.85m², carrelage, orientation ouest
Caractéristiques:
- Première occupation
- Superficie de 77m² (dimension selon les plans d'architecte).
- Chauffage sol, chaudière collective au gaz propane avec décompteurs
- Compteur bi-horaire individuel
- Compteur d'eau individuel
- Châssis triple vitrage en alu
- Emplacement de parking extérieur: 12.000€
- Emplacement sous carport: 14.000€
Informations financières :
Détails :
Certificat énergétique :
E SPECIFIQUE
94 kWh/m².an
Documents :
Demande d'infos :
Retour à la liste